RIF. 4000 - Appartamento
Appartamento
138.000 €
Città :
CASALGRASSO (CN)
Tipo di contratto :
Vendita
Informazioni :
3 Locali
1 Bagni
Descrizione :
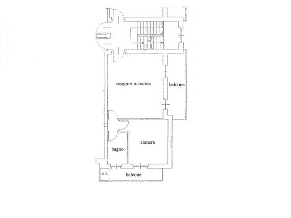
In zona residenziale bellissimo appartamento posto al piano secondo di una palazzina di recente costruzione, composto da ingresso living nel soggiorno con angolo cottura, camera, disimpegno, bagno e due balconi. Tramite una comoda scala interna si accede al piano mansardato di 42 mq. L’immobile si presenta in ottimo stato manutentivo, completo di aria condizionata ed antifurto. Possibilità di acquistare completamente ammobiliato a nuovo. Completa la proprietà un doppio garage e cantina.
Destinazione Vendita Stato immobile Ottimo / Ristrutturato
Classe energetica Attestato Di Certificazione Energetica “d” Giardino Giardino condiviso
Balconi 2 Riscaldamento autonomo
Cantina si Ascensore no
EP 112,64 Type Name Appartamento
Richiedi informazioni

Desideri ulteriori informazioni o chiarimenti su questo annuncio?